ROSE in CORTILE_ Anouk Vogel




rose-courtyard www.anoukvogel.nl

ROSE in CORTILE


Progetto in corso dal 2009
Amersfoort, Paesi Bassi

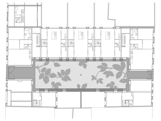
Situato nel cuore del centro storico di Amersfoort,
è il progetto di queste nuove abitazioni, progettate da Monadnock circondate un grande cortile interno.

L’architetto Anouk Vogel ha voluto che il cortile fosse interamente pavimentato con un mosaico raffigurante petali di rosa gigante.
I grandi fiori di rosa sono anche stati usati come motivo decorativo nelle recinzioni in acciaio.

 

unisciti alle altre 1700 e iscriviti mailing list

Torna in alto